您好,欢迎进入易觅尔-日本KITZ北泽阀门网站!

全国咨询热线

4008-550-700

G-10XJME KITZ蝶阀 北泽蜗轮蝶阀 KITZ铝合金蝶阀

日本北泽KITZ涡轮蝶阀G-10XJME的PDF资料产品名称:G-10XJME KITZ  蜗轮式蝶阀产品型号:G-10XJME 使用温度:130℃使用压力:1.0MPa适用介质:压力变动小的水、油、气体、产品备注:日本KITZ阀门销售单位:KITZ阀门名称:蝶阀 压力等级:1.0MPa标准:适用于JIS10K法兰 产品说明:类型: 长阀颈型 手柄式 ...
联系电话:4008-550-700

产品详情

日本北泽KITZ涡轮蝶阀G-10XJME的PDF资料

产品名称:G-10XJME KITZ  蜗轮式蝶阀
产品型号:G-10XJME
使用温度:130

使用压力:1.0MPa
适用介质:压力变动小的水、油、气体、

产品备注:日本KITZ阀门
销售单位:KITZ阀门
名称:蝶阀
压力等级:
1.0MPa
标准:适用于JIS10K法兰

产品说明:

类型: 长阀颈型 手柄式 

材质:          
零件 材质
阀体 铝合金
阀颈 不锈钢SCS13A
蝶板 不锈钢SCS14A
不锈钢
橡胶密封圈 三元乙丙橡胶(EPDM)

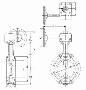
G-10XJME/G-PN16XJME尺寸                        单: mm        
口径 d H H1 H2 H3 L D C D1 L1 E F Gear type
inch mm 10K 5K
11/2 40 40 177 130 60 18.5 33 78 105 95 80 121.5 29 28 No.0
2 50 50 179 132 66 18.5 43 93 120 105 80 121.5 29 28 No.0
21/2 65 65 188 141 74 18.5 46 118 140 130 80 121.5 29 28 No.0
3 80 80 211.5 149 83 18.5 46 129 150 145 110 135 36.4 40.3 No.1
4 100 100 222.5 160 94 18.5 52 149 175 165 110 135 36.4 40.3 No.1
5 125 125 257 194.5 122 18.5 56 184 210 200 110 150 36.4 40.3 No.1
6 150 150 269.5 207 135 18.5 56 214 240 230 110 150 36.4 40.3 No.1
8 200 196 310 233.5 161 32 60 258 290 280 170 185 51 62.9 No.2
10 250 246 405 328 218.5 32 68 316 355 345 170 180 51 62.9 No.2
12 300 295 430 353 243.5 32 78 367 400 390 170 180 51 62.9 No.2

查看更多 >>

产品推荐

4008-550-700